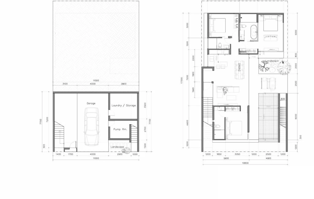
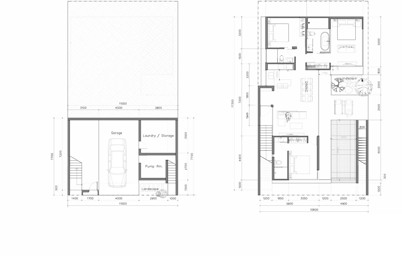
Aileen Villas The Scenery (Phase 3) is a modern residential complex located in the Sakhu area of Thalang, Phuket. The project includes 22 single-story villas with underground parking, offering options with 2, 3, or 4 bedrooms. Each villa is equipped with a spacious open-plan living and dining area, a modern kitchen, and a private pool adjoining the master bedroom. The living areas open onto a large terrace by the pool, creating perfect conditions for relaxation and entertainment.
Location: The complex is situated in a secluded spot between Nai Thon and Nai Yang beaches, ensuring a tranquil atmosphere while remaining in close proximity to key infrastructure. Nai Thon Beach is just 3 km away, and Phuket International Airport can be reached in 10 minutes by car.
Amenities and infrastructure: Residents of the complex can take advantage of the following amenities:
24/7 security
CCTV surveillance system
Private entrance
Communal pool
Gated community
With a combination of modern design, convenient location, and developed infrastructure, Aileen Villas The Scenery (Phase 3) is an attractive option for those seeking comfortable housing or an investment opportunity in Phuket.
Payment is made to the developer's account.
| Stage | Amount |
|---|---|
| On booking | 200 000 ฿ |
| After signing the contract | 35% |
| Foundation completed | 20% |
| Construction of the concrete structure is complete. | 15% |
| Wall finishing is complete. | 15% |
| Floor finishing completed | 10% |
| When transmitting an object | 5% |
