Saturdays Villas is a new project of luxury villas located in the Rawai area on the island of Phuket, Thailand. The complex consists of 8 adjacent villas, each offering modern tropical Asian design and high-quality finishes.
Key features of the villas:
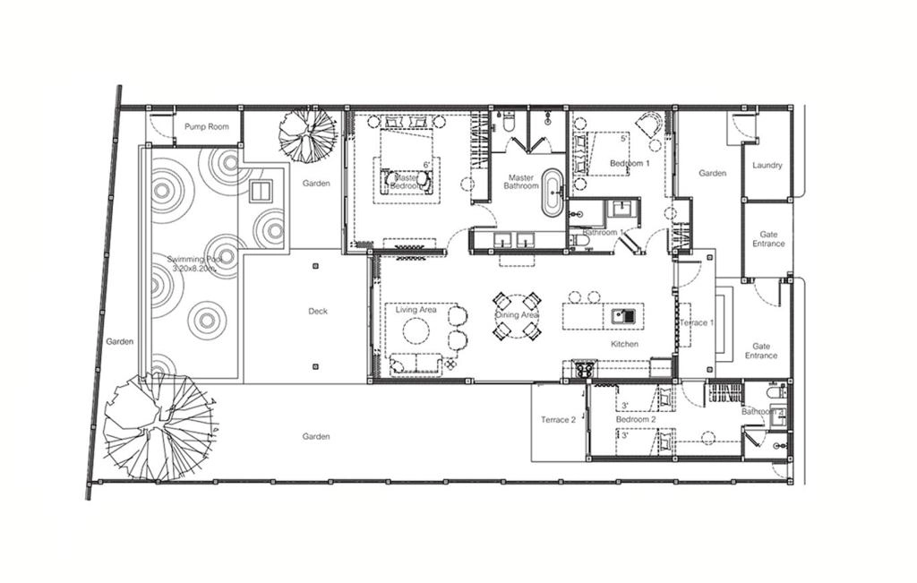
Villa area: from 190 to 199 m².
Land area: from 226 to 497 m².
Number of bedrooms: 2-3 bedrooms.
Amenities: each villa is equipped with a private pool and a spacious terrace for relaxation.
The project was launched in May 2023, and the construction of each villa takes about 12 months from the date of purchase.
Location:
Saturdays Villas are situated in a quiet area of Rawai, close to Rawai and Nai Harn beaches. Nearby the complex, there are restaurants, shops, and other infrastructure facilities that ensure comfortable living.
Payment is made to the developer's account.
| Stage | Amount |
|---|---|
| On the booking | 2% |
| After signing the contract | 23% |
| The foundation is complete. | 15% |
| The construction of the concrete structure is complete. | 15% |
| After the main construction is completed | 15% |
| The finishing of the walls and floor is completed. | 15% |
| When transferring an object | 15% |
